VERMIETET

Großzügige Bürofläche mit Dachterrasse im 4. und 5. OG in der Schmiedgasse

Heißen Sie Ihre Kunden und Kundinnen in eleganten Büroräumen willkommen und zeigen Sie sofort Ihren Stil und das Potenzial Ihres Unternehmens. Wir bieten Ihnen in Graz freie Flächen und exklusive Büroräume in ehrwürdigen Häusern, die modern und mit Fingerspitzengefühl gestaltet sind.

Büros im exklusiven Gebäude auf zwei Stockwerken

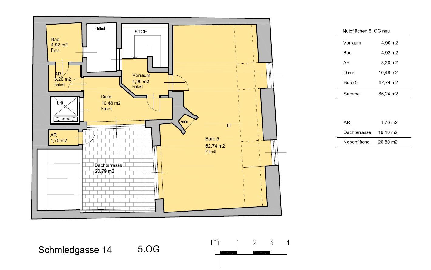
Die großzügigen Büroräume im Stadthaus sind auf den vierten und fünften Stock aufgeteilt. Im vierten Obergeschoss stehen Ihnen rund 120 m² und vier Büros zur Verfügung, das fünfte Obergeschoss bietet eine freie Fläche mit 86 m², die an Ihre Wünsche angepasst werden kann. Zum Dachgeschoss gehört eine Dachterrasse, die viel Raum für ein gemütliches Mittagessen Ihres Teams, geschäftliche Events oder einen Drink nach der Arbeitet bietet. Alle Räume sind mit sämtlichen Möglichkeiten für eine moderne Nutzung ausgestattet. Für Ihre Fragen stehen wir Ihnen gerne persönlich zur Verfügung.

VERMIETET

Repräsentative Mietfläche in elegantem Stadtpalais in der Stempfergasse

Die 231 m² große Mietfläche befindet sich in der Stempfergasse 3 im dritten Stock in einem eleganten Stadtpalais aus dem 15. Jahrhundert. Perfekt restauriert und modern renoviert entspricht die Immobilie den Anforderungen des modernen Büro- und Geschäftslebens bestens.

Die Fläche besteht aus fünf Büros, einem Vorraum und den Sanitäranlagen. Ein Abstellraum ist ebenfalls vorhanden.

Lift sowie barrierefreier Zugang sind ebenso selbstverständlich wie eine Teeküche.

Besonderes Augenmerk wurde darauf gelegt, dass die einzelnen Arbeitsplätze der Bürofläche modernsten IT-Standards entsprechen.

Die Stempfergasse liegt sehr zentral in einer attraktiven Seitengasse der historischen Grazer Herrengasse.